PROJECT
Ski Camp
LOCATION
Mountain Village, CO
YEAR
2018-2025
STATUS
Under Construction
Set just off the ski run, Ski Camp is a home shaped by slope and light—where intuitive forms, layered spaces, and a deep connection to the land create a place for mountain life to unfold naturally.
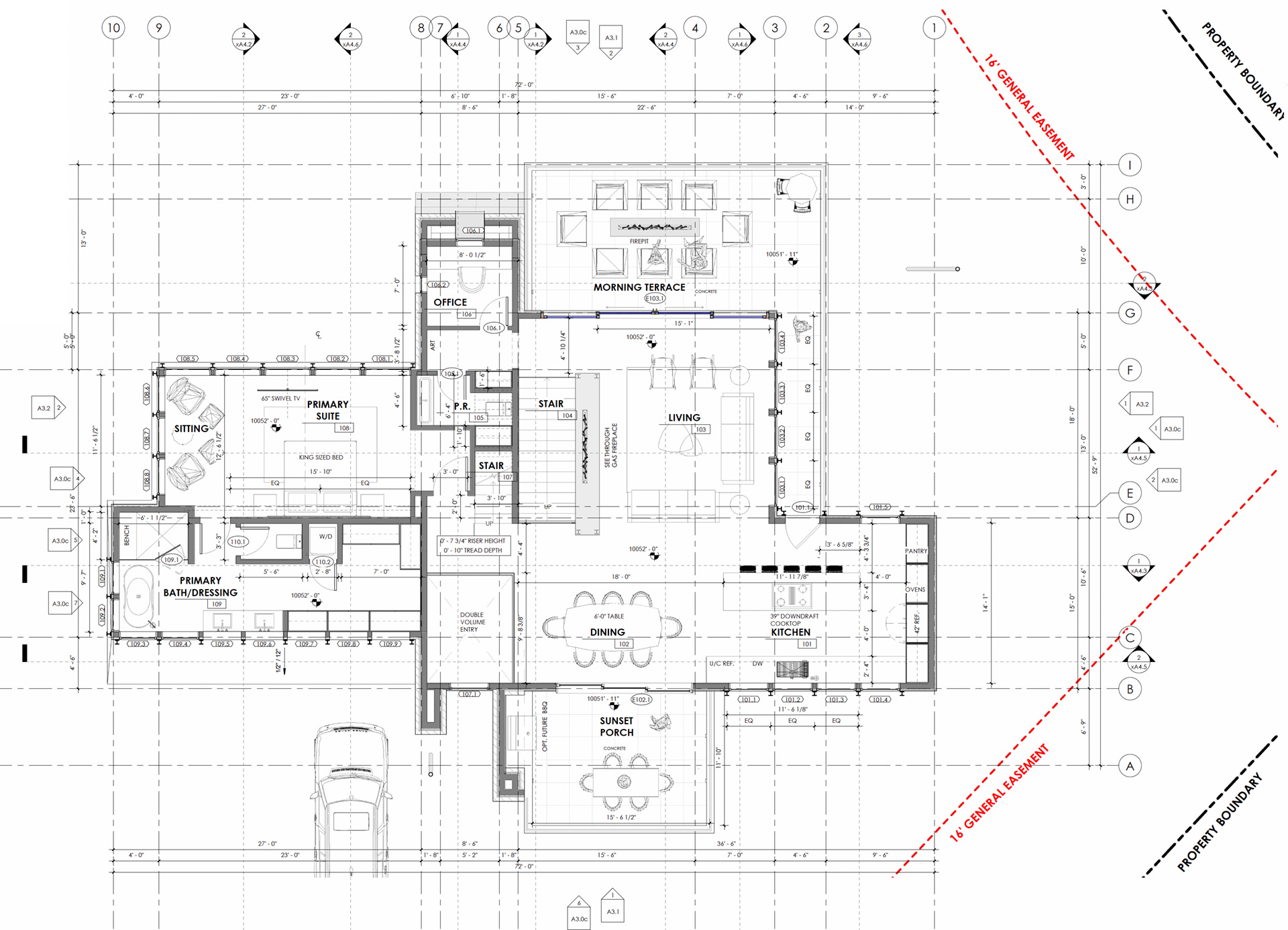
Set into the curve of a wooded knoll just off the ski run, Ski Camp is a home shaped by slope, sun, and the patterns of family life in the mountains. The design follows the natural arc of the land, stepping gently with the topography and opening to light, views, and protected outdoor space. At the heart of the home, a glass-lined solarium connects the kitchen, dining, and living areas to a sheltered courtyard and bridge deck—creating a quiet, continuous flow between indoors and out.
Each part of the home is considered in relation to its use and surroundings. The master suite stretches east to west, positioned to capture morning light and long views through the trees.
A lounge anchors the southwest edge of the plan, with its own firepit and private terrace. Below, a dedicated kid zone includes bunk rooms, a playroom, and access to a protected yard. The ski lounge, tucked beneath the motor court, provides a warm landing spot with lockers, storage, and direct access to the run.
Throughout the house, materials are honest, the forms intuitive, and the spaces designed to feel both expansive and close. Nothing is overly stated—just a quiet clarity in how the home listens to the land, and supports life within it.
SITE
This site is a unique 2.8-acre
triangular parcel at the top
ofbordering to the east. Two other
houses exist on neighboring lots to
the south. These houses appear to
have been carefully planned to
anticipate development on this lot
and are positioned at their perimeters
to not have any adverse view
impacts.
FAMILY
This project is aboutbuilding a legacy in Telluride for their familyand future generations to enjoy. The have lived in their current house in Mountain Village for a decade and have found this lot to build their "forever" spot.
From the initial concept to the final touches, every aspect of the design is thoughtfully crafted to create a space that is both functional and beautiful.
SPECIAL KNOLL
The ideal building location is the highpoint of the site on the natural knoll. Instead of building directly on this special place, we are building around it to preserve and frame this natural oasis. All lving spaces radlate from the knoll forming the unlque semi-circular shape that reaches into the landscape. This geometry conforms to the natural topography of the hillside and Is inspired by radial shapes inenvironment.
DRIVEWAY
Accessing the knoll posed its own unique challenges. We needed to gain 50 feet in elevation from the highest access point along Benchmark Drive and required over 500 feet of run to achieve a continuous, gentle grade. We worked closely with the civil engineer to discover the most sensitive path through the site, which required the least amount of grading and saved the most trees. This path was then geometrically refined from the center of the knoll down to the road.
SOLAR DESIGN
Throughout history, humans have harnessed the sun for solar gain, natural light, and warmth. We are embracing the panoramic views to the north and welcoming the sun through our east-west oriented, south-facing courtyard space.
MASSING
The main forms are simple sheds sloping up to the views at the living and master suite. Connecting roof areas are flat and conform to the radial plan to keep as simple as possible. Vertical stone elements rise up from the earth to areet the sky at various points denoting the enclosed functions of fire, support, or circulation.
MATERIALS
The materials are intentionally vintage, rustic, and raw to counteract the modernity of the forms and overall radial geometry. A warm, balanced color palette blends seamlessly with nature. Vertical curving stone recalls the ancestral puebloan precedents of our broader region.
This house is on a large lot and mostly hidden from roads, neighbors, and skiers within a dense forest. The radial shape, although unique for mountain village, is a manifestation of nature itself. This structure was discovered, not imagined and has grown sensitively out of this particular place.
SKIING
The ski run is almost 350 feet from the knoll and 35 feet below. This distance and height inspired the linear, stepping massing with radiating spaces to the ski run and views. This area is connected to the main area of the residence via an enclosed, yet light-filled bridge floating through the forest.



